Top.Mail.Ru

Скандинавский лес

Вернуться к интерьерам

Яна Алексеева

студентка факультета дизайна жилых помещений
Москва

Своим основным направлением в дизайне я выбрала скандинавский модернизм и эко стиль. Предпочтение отдаю экологичным материалам в отделке и мебели. Просвещаю окружение и потенциальных клиентов с помощью социальных сетей об осознанном подходе к ремонту и выбору материалов. Вдохновляюсь идеями Bauhaus. Недавно победила в конкурсе по созданию Эко стиля.


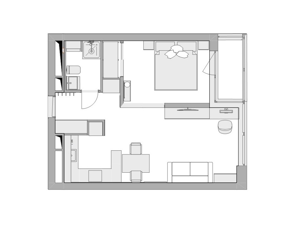
Скандинавский лес


Меня вдохновляет природа Карелии и Финляндии. Я искренне восхищаюсь скандинавами, их культурой и дизайном. Поэтому в этом проекте мне захотелось соединить природные оттенки в материалах и мебели с современными и популярными сейчас латунью и мрамором, создать актуальный интерьер с природным оттенком. Просторная кухня-гостиная освещается панорамными окнами, где расположено рабочее место. Дополнительные зеркала многократно отражают естественный свет и расширяют еще больше пространство гостиной. Кухонная зона объединена с обеденной и имеет свои сценарии освещения. Спальня отделена от гостиной стеклянной перегородкой и добавляет еще больше воздушности пространству, не забывая о приватности. В зоне отдыха главный акцент - диван, поэтому он должен быть стильным, современным и ярким. Интерьер сдержанный, но при этом изящный и элегантный. Он универсален по возрасту и полу. В проекте использованы: диван MATERA с глубоким посадочным местом в обивке luxor 88 , брутальный стол LANNKU с изящными стульями ARIEL, которые в поддержку дивану создают единый гармоничный образ с легким оттенком ретро. Потолочный светильник коллекции PEARL 700 как завершающий аккорд в зеленой гамме.


+7 (800) 511-72-03

Розыгрыш в Телеграм
HAUSKA × «Порядок Дома»

Создайте уют и порядок к Новому году!

Участвуйте и выиграйте:

  • Сертификат –10% от HAUSKA + комплект постельного белья Lennol
  • Подарки от «Порядок Дома» — стильная подставка и сертификат на услуги по организации пространства

Итоги — 22 декабря.